楽しいメルマガ配信 登録はこちら 無料

全国★古民家探し

見たい地域をクリックしてください。

提携パートナー検索

○工務店・不動産の皆様へ
古民家ライフとの提携ついて→

古民家ライフPRESENTS 農的スローライフのススメ

古民家ライフ 023-623-8135 (9:00~20:00) 定休日:日曜・祝日 mail@kominkalife.com

規約・免責事項

山形県 [NEW 置賜 地主様の古民家]

この物件に関するお問合わせ 見学希望フォーム 一覧画面に戻る
物件番号 種類 再生方法 取引形態 所在地 価格
20140730 古民家 移築の為の材料 解体して材料として利用 山形県置賜郡高畠町 解体費負担分
取扱い店 連絡先TEL E-mail
古民家ライフ株式会社 023-625-8135 mail@kominkalife.com

 

茅葺きの屋根にトタンをかぶせた屋根です。

 

人が住まなくなって数年経ちます。

玄関を入ると箪笥が置いてありました。

 

奥の間を見る

奥の間。

 

 

もともとは台所が合った場所だと推測されます。

 

2階へあがる階段。

2階へあがると丸太組みがいきなり見えます。

 

長物で6軒ぐらいの長さの丸太を使っています。

この丸太組みがとてもきれいです。

 

 

 

 

曲がった丸太をとても上手く使っています。

 

 

 

 

 
コメント
元々このあたり一帯の地主様の家だったそうです。
大正5年に造られた古民家です。
2階の梁組がとても立派なお宅です。
材料は柱が杉、梁材は松材です。
出来れば今年中、遅くとも来年の6月までには解体するそうです。
このお宅の見どころは2階の梁組にあります。
1階に床をはり、2階の今の床をはがしそのまま小屋組みの梁組を見せるような使い方が出来れば、とてもいい仕上がりになると思います。
1階部分は図面の通り、ほぼ建具のみで構成されており、移築した場合壁を多く造る必要があると思います。
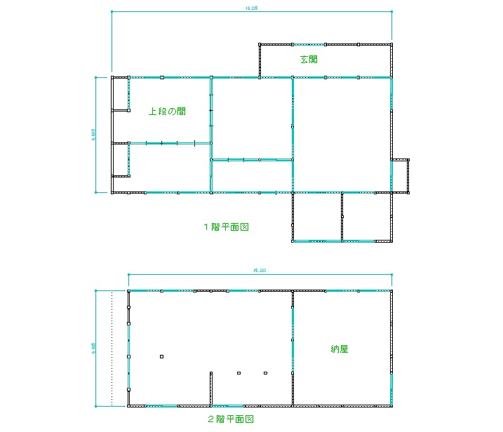
間取り図
間取り 図面参照
販売価格 解体費負担分
所在 山形県置賜郡高畠町
建物面積 1階部分(106.3㎡) 2階部分(89.3㎡) 約60坪
築年月 大正5年
土地権利 地目
都市計画 用途地域
建ぺい率 容積率
現況 引渡条件 欲しい方 解体費負担
引渡日 取引様態 材料のみの御取り扱いになります
取扱い店 連絡先TEL E-mail
古民家ライフ株式会社 023-625-8135 mail@kominkalife.com
所在地 ホームページ
山形県山形市大字岩波41-10 http://kominkalife.jp/
この物件に関するお問合わせ 見学希望フォーム 一覧画面に戻る

PAGE TOP

こんな古民家が欲しい   古民家を譲りたい   古民家ライフに相談したい

NEWS   お客様の声   農的スローライフのススメ   掲載の申込みについて   会社案内   TOP

Copyright (C) 2014. KOMINKA LIFE.,All rights reserved.