|


|
兵庫県 [兵庫・姫路の古民家]
| 物件番号 |
種類 |
再生方法 |
取引形態 |
所在地 |
価格 |
| 20100625 |
古民家 |
移築再生 |
材料+施工 |
兵庫県 |
解体費負担分 |
| 取扱い店 |
連絡先TEL |
E-mail |
| 古民家ライフ株式会社 |
023-625-8135 |
mail@kominkalife.com |
|

|
|

下屋には瓦が載っています。
|
|

|
|

玄関から入ってみましょう
|
|

|
|

梁と梁の継ぎ手の位置。
|
|

|
|

洋室から見た梁。
|
|

|
|

土間の梁と飾り物。
|
|

|
|

床の間と仏壇。
|
|

|
|

土間から玄関を見たところ
|
|

|
|

台所から和室を見たところ。
|

| コメント |
・はっきりとした家系図は残っていませんが、話伝えではおよそ100年になるかと聞いております。
・昔からの農家で、地区では大きいほうの庄屋さんだったそうです。
・建築時にどのような方法で棟上したのか知りたいくらいの骨太な骨格です。
・解体後は住まいとしての古民家、お店等で利用可能かと思います。
|
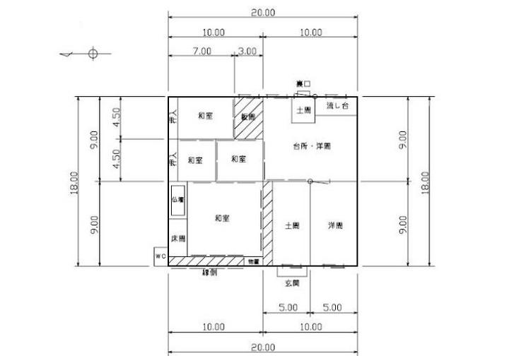
| 間取り図 |
|
| 間取り |
図面参照 |
| 販売価格 |
解体費負担分 |
| 所在 |
兵庫県 |
| 建物面積 |
360㎡(109坪) |
| 築年月 |
|
| 土地権利 |
|
地目 |
|
| 都市計画 |
|
用途地域 |
|
| 建ぺい率 |
|
容積率 |
|
| 現況 |
|
引渡条件 |
|
| 引渡日 |
|
取引様態 |
材料+施工 |

|